Wichelen

Alle projecten

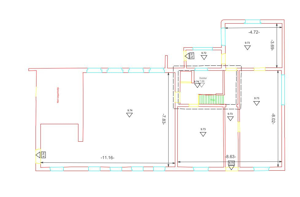
Voor een verbouwingsproject te Wichelen hebben wij voor Marcel Architecten het perceel met gebouwen in kaart gebracht.

Van het perceel werd een plan bestaande toestand opgemaakt en van de gebouwen telkens grondplannen, geveltekeningen en snedes. Hier kan je een greep uit de plannen bekijken.

Jouw project starten?

Landmeters Cuyt

Haachtse straatje 16,
3150 Haacht
 
Boudewijnlaan 31,
2220 Heist-op-den-Berg

Contactgegevens